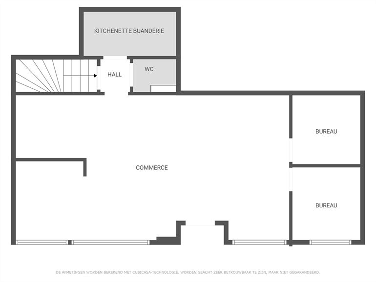
Rez-de-chaussée polyvalent de ± 100 m² entièrement rénové en 2019. Idéal pour activité commerciale, bureaux, cabinet médical, profession libérale. Il se compose d’un rez-de-chaussée de ± 69 m², buanderie/kitchenette, sanitaire. Au sous-sol, vaste pièce polyvalente de ± 31 m² pour stockage, bureau,… 5 places de parking privatives en supplément obligatoire (+ 30.000,00 € pour les 5 places)
COUP D'OEIL PPR
Localisation stratégique entre Wavre et Limal (accès direct E411). Sur axe de passage très fréquenté et bénéficiant d’une vitrine à rue de 12 mètres. Offrant de nombreuses possibilités d’exploitation
DESCRIPTION
Sous-Sol : - Local stockage/bureau ± 25 m²
(± 31 m²)- Débarras/stockage ± 6 m²
Rez-de-Ch : - Commerce ± 48 m²
(± 69 m²)- 2 pièces individuelles ± 5,50 m² chacune
- Buanderie/kitchenette (évier inox, empl. machine à laver) ± 4 m²
- w.c séparé (lave-mains)
Abords : - 4 places de parking devant le commerce
- 1 place de parking à l’arrière du bâtiment
GERANCE : IMMO-W - 081/61.72.85 - syndic@immo-w.be
QUOTITE DANS LES PARTIES COMMUNES : 110/1.000èmes
CHARGES MENSUELLES : ± 68 €/mois (communs) + Fonds de réserve
EQUIPEMENT
Électricité conforme, conformité incendie, double vitrage PVC et bois, air conditionné réversible chaud/froid, chauffage central au gaz, alarme Verisure, VMC (caves), Quick Step, éclairage intégré, compteurs individuels, volet électrique, vannes thermostatiques, Proximus
FRAIS D'ACQUISITION
Calculez ici vos frais d'acquisition
NOTAIRE
Maître Jamar (Chaumont-Gistoux)
RENSEIGNEMENTS CADASTRAUX
Matrice n° 25006
Division : 3 Section : D N° 190h
Revenu Cadastral Net : 1.500,00 €
Précompte Immob : 1.233,00 €
SUPERFICIES
Au sol : ± 69 m²
Sous-sol : ± 31 m²
Largeur vitrine : ± 12 mètres
Totale : ± 100 m²
DIVERS
Année de Construction : ± 1991
Rénovations : ± 2019
LA PARTIE ACQUEREUR GARDE LE LIBRE CHOIX DU NOTAIRE INTERVENANT
Descriptif informatif - Non contractuel - A titre indicatif - Sans garantie et sous toutes réserves
.png?format=webp&width=1920&height=auto)


























