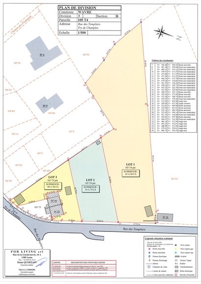
TERRAIN d’une superficie totale de ± 45 ares 94 ca, situé en zone d’habitat et partiellement en zone forestière dans le fond de parcelle et à front d’une voirie équipée. Ce terrain offre une largeur à rue de ± 25,50 mètres sur une profondeur de ± 141 mètres sur un terrain principalement plat avec vue dégagée. Libre de constructeur. À vos projets !
COUP D'OEIL PPR :
Excellente orientation SUD-OUEST
Situé dans un quartier résidentiel et verdoyant de Bierges
Excellente localisation à 20min de Bruxelles et accès direct à la E411
À proximité immédiate de Wavre et Rixensart et toutes leurs commodités
EQUIPEMENT à rue :
Électricité, égouttage, eau, téléphone, internet
FRAIS D'ACQUISITION : Calculez ici vos frais d'acquisition ± 2.000 € pour géomètre
NOTAIRE : Maître Indekeu (Ixelles)
RENSEIGNEMENTS CADASTRAUX :
Matrice n° 25006
Division : 3 e Section : B
N° : 105 T4 partie
Revenu cadastral net : à enrôler
Précompte immobilier : à enrôler
SUPERFICIES :
Profondeur : ± 141,85 mètres
Façade : ± 27,52 mètres
Superficie : ± 45 ares 94 ca
Orientation : ± Sud-Ouest
Occupation : Libre de constructeur
URBANISME :
Zone d’habitat et zone forestière
Axe de ruissellement au fond de la parcelle
LA PARTIE ACQUEREUR GARDE LE LIBRE CHOIX DU NOTAIRE INTERVENANT
Descriptif informatif - Non contractuel - A titre indicatif - Sans garantie et sous toutes réserves
.png?format=webp&width=1920&height=auto)




















