OPPORTUNITÉ À SAISIR ! Espace commercial de ± 78 m², composé de deux entités cadastrées distinctes avec entrées indépendantes, idéalement situé en plein centre de Wavre. L’ensemble, entièrement rénové et aménagé avec soin, comprend une première partie de ± 53 m² et une seconde de ± 25 m², une cave ainsi qu’une terrasse de ± 6 m². Bénéficiant d’une excellente visibilité, ce bien convient parfaitement pour une activité commerciale, libérale ou de bureau. Un accord verbal de la commune permettrait la création d’un appartement dans la plus grande partie et d’un bureau dans la plus petite, offrant ainsi un beau potentiel d’investissement mixte au cœur de Wavre.
DESCRIPTION
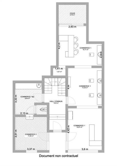
Sous-sol : - Cave
Commerce LOT 1 :- Salle d'attente avec comptoir d'accueil
(± 53 m²)- Salon de coiffure avec 3 sièges
- Bar lounge (lave-vaisselles, frigo, machine à café)
Commerce LOT 2 :- Commerce avec entrée indépendante
(± 25 m²)- Cuisine (machine à laver et séchoir, lavabo, w.c. séparé)
Abords : - Terrasse ± 6 m²
- Parking aisé devant le commerce
QUOTITE DANS LES PARTIES COMMUNES : - Lot 1 : 186/1.000ièmes
- Lot 2 : 106/1.000ièmes
CHARGES MENSUELLES : ± 25 €/mois (communs)
EQUIPEMENT
Chauffage central au gaz ± 2020, double vitrage PVC ± 2006, radiateurs vannes thermostatiques, toiture neuve, éclairage complet, carrelage au sol, compteurs individuels, foyer d’ambiance électrique
FRAIS D'ACQUISITION
Calculez ici vos frais d'acquisition
NOTAIRE
À définir
RENSEIGNEMENTS CADASTRAUX
25112 Wavre, Division : 1
Section : M N° 485 D
Revenu Cadastral Net : 2.067,00 €
Précompte Immob : (24) 1.647,76 €
SUPERFICIES
Commerce 1 : ± 53 m²
Commerce 2 : ± 25 m²
Totale : ± 78 m²
Largeur façade : ± 13 mètres
DIVERS
Rénovations : ± 2018
Acte de base sur demande
LA PARTIE ACQUEREUR GARDE LE LIBRE CHOIX DU FISCALISTE/COMPTABLE INTERVENANT
Descriptif informatif - Non contractuel - A titre indicatif - Sans garantie et sous toutes réserves
.png?format=webp&width=1920&height=auto)



















