FERMETTE de charme de ± 285 m² utiles sur un terrain de ± 27 ares. Située dans une rue résidentielle calme à quelques minutes du centre de Chaumont-Gistoux. Composée de 2 chambres, séjour de ± 24 m² avec poêle à bois, salle à manger, cuisine équipée, buanderie, bureau, grenier aménageable de ± 34 m², 2 étables dont une aménage en garage.
COUP D'OEIL PPR :
Possibilité d’aménager un appartement indépendant dans les étables
Rue résidentielle calme dans un cadre champêtre
Proximité immédiate des axes de communications (E411; chée de Huy,…)
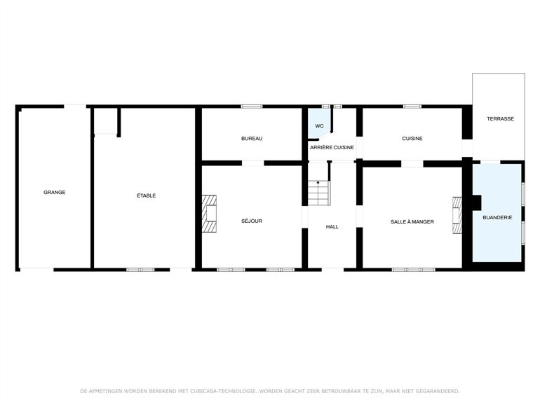
DESCRIPTION
Sous-Sol : - Caves ± 34 m²
Rez-de-Chaussée :
- Hall d’entrée ±12 m²
- Hall secondaire + w.c et accès cave ± 6 m²
- Salle à manger ± 23 m²
- Cuisine ± 12,5 m²
- Séjour ± 24 m²
- Bureau ± 10,5 m²
- Buanderie/annexe de ± 10 m²
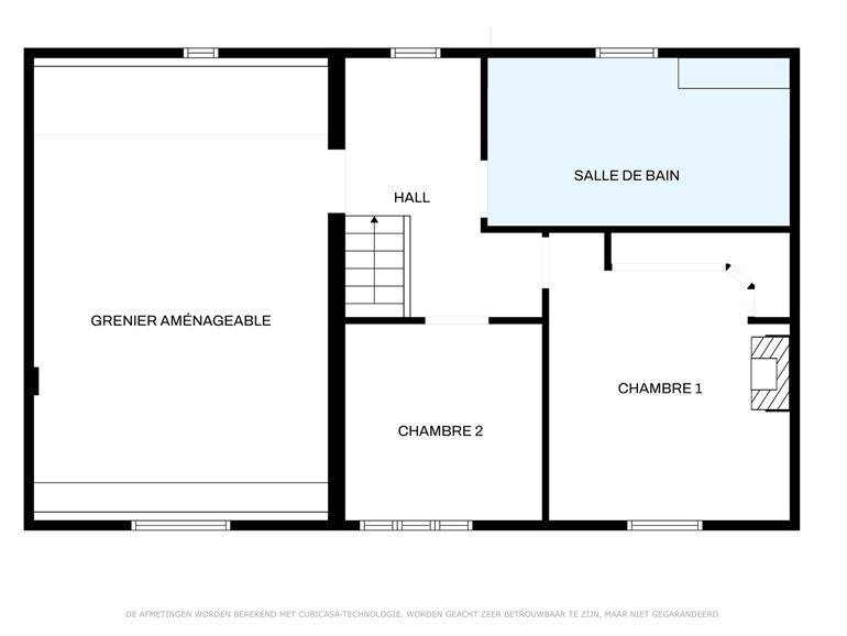
1er Étage : - Hall de nuit mansardé
- Chambre ± 11 m²
- Chambre ± 19 m²
- Salle de bain avec w.c ± 13 m²
- Grenier aménageable ± 34 m²
Abords : - Étable de ± 33 m² avec arrivée d'eau (toilette) et électricité
- Grange/Garage avec entrée carrossable ± 26 m²
EQUIPEMENT :
Chauffage central mazout avec citerne enterrée de ± 3.000 litres , double vitrage bois, électricité bi-horaire, revêtement de sol en pierre, carrelage et moquette.
FRAIS D'ACQUISITION : Calculez ici vos frais d'acquisition
NOTAIRE : Me Jamar. (Chaumont-Gistoux)
RENSEIGNEMENTS CADASTRAUX :
Matrice n° 25018
Division : 1ère Section : D N° 310c
Revenu Cadastral Net : 555 €
Précompte Immobilier : ± 520,88 €
SUPERFICIES :
Habitable : ± 150 m²
Utile : ± 285 m²
Terrain : ± 27 ares 31 ca
DIVERS :
Année Construction : avant 1850
Installation électrique non conforme
LABEL ENERGETIQUE :
E spec: 624 kWh/m²/an
E totale: 97.681 kWh/an
PEB No.: 20241226008881
.png?format=webp&width=1920&height=auto)































