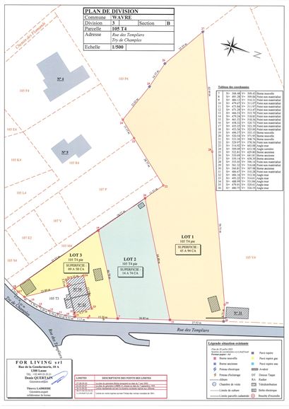
Perceel voor een 4-gevel villa van’met een totale oppervlakte van ± 14 are 74 ca, gelegen in de woonzone’en frontaal op’een verharde weg. Dit perceel heeft een straatbreedte van ± 27 m en een diepte van ± 64 m op overwegend vlak terrein met ononderbroken uitzicht. Vrij om te bouwen. Klaar voor uw projecten!
GLANS OP'PPR
Uitstekende ligging op het zuidwesten
Gelegen in een lommerrijke woonwijk van Bierges
Uitstekende locatie op 20 minuten van Brussel en directe toegang tot de E411
In de onmiddellijke nabijheid van Waver en al zijn voorzieningen
Straatuitrusting:
Elektriciteit, riolering, water, telefoon, internet
AANKOOPKOSTEN': Bereken hier uw aankoopkosten' ± 2.000 € voor landmeter
NOTARIS: Maître Indekeu (Elsene)
KADASTRALE INFORMATIE:
Kadastraal register n°25006
Afdeling : 3 e Sectie : B
N° 105 T4 deel
Netto kadastraal inkomen: in te vullen
Onroerende voorheffing: in te vullen
AREA:
Diepte: ± 64,48 meter
Straatgevel: ± 26,83 meter
Oppervlakte: ± 14 are 74 ca
Oriëntatie: Zuiden - Westen
Bewoning: leeg
URBANISME:
Woonwijk’
Afvoeras onderaan het perceel
DE KOPER BEHOUDT HET RECHT OM DE BETROKKEN NOTARIS TE KIEZEN
Informatieve beschrijving - Niet-contractueel - Alleen ter informatie - Zonder garantie en onderhevig aan verandering zonder kennisgeving
.png?format=webp&width=1920&height=auto)


















