Contact
Rue de l'Etoile 15
1301 Bierges - Belgique
+32 (0)10/42.02.22
ppr@ppr.be
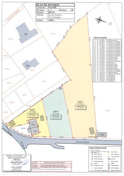
LAND of’with a total surface area of ± 45 ares 94 ca, located in the’housing zone and partially in the forest zone at the bottom of the plot and fronting on’a serviced road. The plot has a street width of ± 25.50 m and a depth of ± 141 m on a mainly flat plot with unobstructed views. Free of manufacturer. To your projects!
GLANCE AT'PPR:
Excellent south-west exposure
Located in a green residential area of Bierges
Excellent location 20 minutes from Brussels, with direct access to the E411 motorway
Close to Wavre and Rixensart and all amenities
Street-level EQUIPMENT:
Electricity, sewerage, water, telephone, internet
ACQUISITION COSTS': Calculate here your acquisition costs' ± 2.000 € for surveyor
NOTARY: Maître Indekeu (Ixelles)
CADASTRAL INFORMATION:
Matrix n° 25006
Division : 3 e Section : B
N° : 105 T4 part
Net cadastral income: to be entered
Property tax: to be entered
AREA:
Depth: ± 141.85 metres
Frontage: ± 27.52 metres
Surface area: ± 45 ares 94 ca
Orientation: ± South-West
Occupancy: Unoccupied
URBANISM:
’housing and forest zone
Runoff axis at the bottom of the plot
THE PURCHASER RETAINS FREE CHOICE OF THE NOTARY INVOLVED
Informative description - Non contractual - For information only - Without guarantee and under all reserves




